Layout of Villa Navio
The layout of Villa Navio is designed together with the Architect office of Bespoke based in Carvoeiro.
The villa is intentionally positioned slightly above street level, enhancing its elegant appearance and sense of privacy. This elevated setting offers wider views, optimal natural light and ventilation, and improved protection against rainwater. It emphasizes the villa’s distinguished character while maintaining convenient access to both the entrance and the garages.
This exclusive villa is spread over three levels, combining comfort, elegance, and functionality.
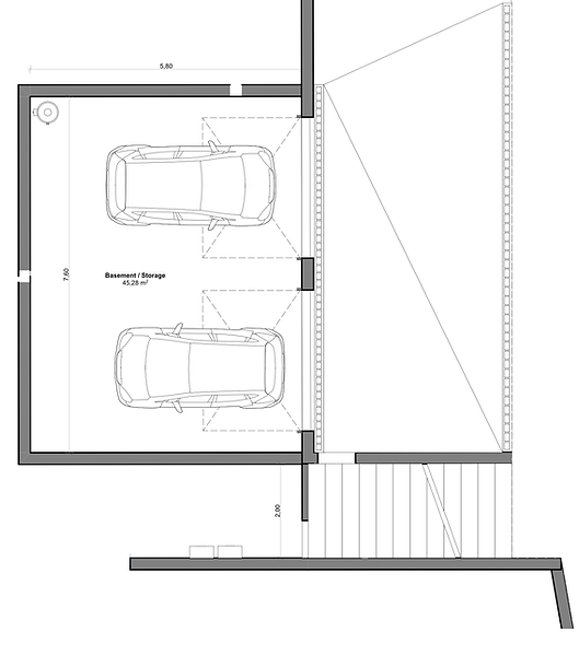
The lower floor houses two spacious garages with direct access to the poolbasement.
The groundfloor features a bright open-plan living area, where the living room and modern integrated kitchen flow seamlessly together.
The entrance hall, additional hallway toilet, a comfortable generous senior bedroom, and an integrated bathroom complete this level.
On the firstfloor, two large bedrooms are each equipped with their own luxurious en-suite bathrooms.
The staircase is divided into two sections and leads to a central landing that connects both bedrooms and bathrooms — creating a sense of harmony and balance throughout the home.
Plotsize: 252 m2 - Projectsize 660m3

Plan Villa Navio

GROUNDFLOOR - 118,10 m2

FIRSTFLOOR - 100,99 m2






